Проект доступен в трех комплектациях:
I. Домокомплект. Холодный контур
Стоимость: 1 600 000 ₽
Готовые элементы каркаса, сделанные по проекту, для самостоятельной сборки. Детали изготовлены в теплом и сухом цеху на специальном оборудовании. Тавровые клеёные стойки, балки, лаги пола готовы к сборке. Это улучшает качество конструкции и повышает скорость работы.
Что входит в стоимость?
1. Элементы силового каркаса из сухой строганой доски камерной сушки.
2. Плиты ОСП для создания пространственной жесткости конструкции
3. Стропила. Доска обрезная 195х45.
4. Обрешетка естественной влажности. Доска обрезная 150*25. Сосна.
5. Кровельное покрытие (металл).
6. Пол черновой естественной влажности. Доска обрезная 150*30. Сосна.
II. Домокоплект. Теплый контур
Стоимость: 2 320 000 ₽
С монтажом: 2 580 000 ₽
Готовые элементы каркаса, сделанные по проекту. В цену входит монтаж. Детали изготовлены в теплом и сухом цеху на специальном оборудовании. Останется только установить окна и дверь.
Что входит в стоимость?
1. Фундамент свайный: Сваи винтовые 8 мм, заполнение песчано-цементной смесь / сваи ЖБ.
2. Элементы силового каркаса из сухой строганой доски камерной сушки.
3. Плиты ОСП для создания пространственной жесткости конструкции.
4. Стропила. Доска обрезная 195х45.
5. Утепление: Утеплитель - минеральная вата. В стене 150мм, в крыше 200мм. Плотность - от 35 кг/м3.
6. Гидроизоляционная пленка (пароизоляция), гидро-ветрозащитная дифузионная мембрана (ветрозащита).
7. Сборка каркаса, обшивка ОСП, утепление, монтаж пленок и мембран, монтаж кровельного покрытия - входят в стоимость.
8. Отделка фасада имитацией бруса.
9. Перед началом работ утверждаем смету.
III. Дом с коммуникациями «под ключ»
Стоимость: 4 980 000 р.
1. Все что входит в комплектацию «теплый контур»
2. Окна ПВХ 5-ти камерные, 3-ой стеклопакет, дверь с терморазрывом.
3. Электрика базовая (1 провод на выключатель, 1 провод на розетку, 1 провод для освящения на 1 комнату) по всему дому. Заземление входит в работы.
4. Водоснабжение, водоотведение разводка труб по дому. Септик переливной 5 м3.
5. Отопление инфракрасный пол.
6. Вентиляционные вытяжки 3 шт.
7. Отделка помещений деревом (имитация бруса/вагонка)
8. Пол плитка ламинат
9. Потолок натяжной
10. С/у отделка кафелем, окрас
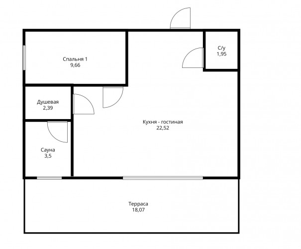
11. Терраса (доска листвиница), окрас маслом
12. Сауна с отделкой древом (под ключ), печка каменка эл.
13. Двери межкомнатные
Выбор местоположения
Мы свяжемся с Вами в течение дня.